 
 
  *SOLD* Land Adjacent to Bank House
 
 
  Chartered Surveyors         Land Agents         Valuers
 
 
   
 
 
  Professional Services
 
 
  Valuations
 
 
  Rural estate Management
 
 
  Valuations
 
 
  How much is your property worth?
 
 
  Request a free market appraisal
 
 
  *SOLD* Land Adjacent to Bank House
 
 
  *SOLD* Land Adjacent to Bank House
 
 
 
 
 
 
  Enquiry Online
 
 
  or call us now on
 
 
   
 
 
  01905 27288
 
 
  Request Details
 
 
 
  info@doorbars.co.uk
  (01905) 27288
  32 Sansome Walk,
  Worcester, WR1 1NA
  
 
  How much is your property worth?
 
 
 
  Request a free market appraisal
 
 
 
 
 
 
  Offers to Agent 
 
 
  Crossway Green, Worcestershire, DY13 9SQ
 
 
  Property Description
  Situation
  The development land is situated to the South East of Stourport on Severn at 
  Crossway Green off the A449 trunk road which connects Worcester to 
  Kidderminster. The City of Worcester is situated 9 miles away which provides 
  valuable transport links to Junction 6 off the M5 Motorway with main line 
  railway stations (3) to Birmingham, Bristol and London.
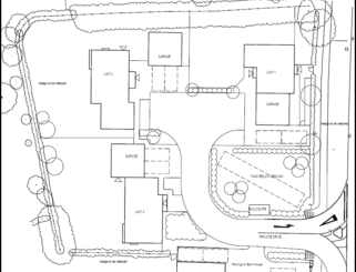
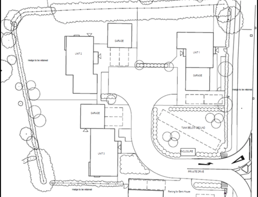
  Description
  The land (0.28 ha/0.69 acres) has planning permission for the erection of 
  three individual residential dwellings under the planning reference 
  20/01749/FUL Wychavon District Council.
  Community Infrastructure Levy
  A community infrastructure levy will be payable to Wychavon District Council 
  on commencement of development
  Planning Details
  Unit 1 – a 2 storey detached dwelling with parts of the first floor 
  accommodation being contained within the roof space, attached garage. 
  Gross internal floor area is approximately 171 square meters (1840 sq ft)
  Unit 2- a 2 storey detached dwelling with parts of the first floor 
  accommodation again being contained within the roof space and a detached 
  single storey garage. Gross internal floor area is approximately 192 square 
  meters (2006 sqft).
  Unit 3- a detached dwelling with attached garage. Gross internal floor area is 
  approximately 161 square meters (1733 sqft)
 
 
   
 
 
  