 
 
  For sale: Two Building Plots, Charlton, nr Pershore.
 
 
  Chartered Surveyors         Land Agents         Valuers
 
 
   
 
 
  info@doorbars.co.uk
  (01905) 27288
  32 Sansome Walk,
  Worcester, WR1 1NA
  
 
  How much is your property worth?
 
 
 
  Request a free market appraisal
 
 
 
 
 
 
   
 
 
   
 
 
   
 
 
   
 
 
  For sale:  Two Building Plots for Bungalows,
  Sidings Lane, Charlton, nr Pershore.
  Price: Tender, Offers Based on £ 150,000
  The
  development
  site
  is
  off
  Sidings
  Lane,
  Charlton,
  which
  leads
  to
  The
  Strand.
  Charlton
  is
  a 
  small
  residential
  village,
  tucked
  away
  between
  three
  sides
  of
  the
  River
  Avon.
  Access
  to
  the 
  A44
  (north)
  is
  via
  the
  Jubilee
  Bridge
  and
  the
  village
  of
  Fladbury,
  whilst
  Evesham
  (southeast) 
  is
  via
  the
  B4084.
  Evesham
  is
  the
  epicentre
  town
  of
  South
  Worcestershire,
  with
  a
  main
  line 
  railway
  station
  on
  the
  Worcester
  to
  Paddington
  line,
  and
  road
  communications
  via
  the
  A46 
  to
  the
  M5
  and
  M42
  Motorways.
  Evesham
  has
  a
  large
  number
  of
  retail
  outlets,
  as
  well
  as 
  sporting and amenity facilities. 
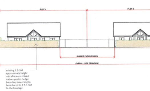
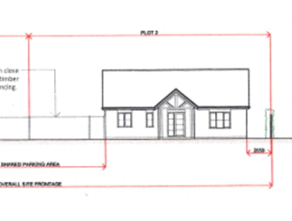
  Description 
  The
  plots
  are
  situated
  on
  former
  allotment
  land,
  off
  Sidings
  Lane,
  surrounded
  by
  residential 
  development.
  Under
  Land
  Registry
  Title
  No.
  WR212148,
  the
  outline
  planning
  permission
  was 
  validated
  on
  17th
  January
  2024
  (Planning
  Ref:
  W/23/02505/OUT)
  and
  permission
  confirmed 
  on
  the
  2nd
  January
  2025,
  in
  a
  completed
  Section
  106
  Agreement
  (available
  from
  the
  agents 
  on request). 
  Local Planning Authority: Wychavon District Council
  County Authority: Worcestershire County Council 
  Please call 01905 27288 for more details.
 
 
  Call 01905 27288 for details.
 
 
  Chartered Surveyors         Land Agents         Valuers